Projekt / aranżacja wnętrza
Dębica Pokaż na mapie ›
Ogłoszenie archiwalne Wygasło: Sobota, 29 Listopad, 2025 21:58
Szczegóły ogłoszenia
- Kategoria: Usługi / Usługi architektoniczne i geodezyjne
Opis oferty
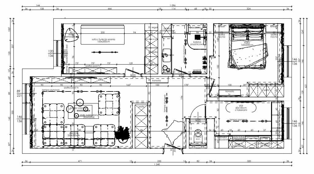
Nie masz pomysłu na aranżację mieszkania? My go znajdziemy!Kupiłeś mieszkanie od dewelopera lub z rynku wtórnego i zastanawiasz się, jak najlepiej wykorzystać jego przestrzeń?
Pomożemy Ci stworzyć funkcjonalne i estetyczne wnętrze dopasowane do Twoich potrzeb.
Oferujemy:
3 propozycje nowych rzutów mieszkania z innym układem funkcjonalno-przestrzennym
Rozwiązania praktyczne i zgodne z ergonomią
Pomysły dopasowane do Twojego stylu życia
Dlaczego warto?
Unikniesz kosztownych błędów aranżacyjnych
Zyskasz świeże spojrzenie na układ mieszkania
Otrzymasz gotowe inspiracje, które pomogą w dalszym etapie wykończenia
Usługę wykonujemy online – dla klientów z całej Polski.
Skontaktuj się z nami i zobacz, jak Twoje mieszkanie może zyskać zupełnie nowe oblicze!
Cena już od 450zł!
Sprawdź zainteresowanie tym ogłoszeniem
Wyświetlenia
Data dodania
Ostatnio widziany
Obserwujących
Wysłane zapytania
To ogłoszenie jest archiwalne i może być nieaktualne.
Marta
Konto prywatne
Na Lento.pl od 31 sie 2025
Strona użytkownika
- Wypromuj ogłoszenie
- Zgłoś naruszenie
- Drukuj ulotkę
- Edytuj/usuń ogłoszenie
- Udostępnij ogłoszenie
- Dodaj na Facebook
